實景丨廣電苑現代風格—留白的藝術,越簡單,越有范兒
“當你離開房間前,
照照鏡子然后去掉一件首飾”。
——Coco Chanel
用香奈兒這句話
解釋“越簡約,越高級”
再合適不過。
以少勝多
以簡勝繁
現代簡約裝修,摒棄過多的物化堆砌,
給家居和生活留下
更多想象的空間。
年輕的教師夫妻,
溫婉和煦,平和淡然,
希望通過家居
生活的打造,
讓生活方式變得
更加有質感。
適度
是世界萬物的藝術
也是幸福生活的哲學
現代簡約實景
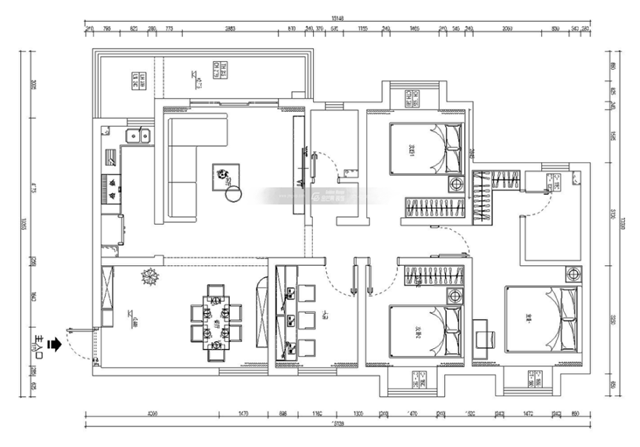
項目樓盤:廣電苑
項目面積:140m²
項目風格:現代風格
設計師:沈甜甜
平面布置

客廳
留白是簡約的藝術,灰色渲染沉靜的高級感。平和淡然的心境,在品質生活的塑造中有跡可循。
效果圖

實景



深入其中的小細節是制造生活樂趣的最佳表演,毛茸茸的小凳子,靈動的小擺件,制造生活里的小確幸。


幾抹跳躍的亮色,是平靜生活里藏匿的小驚喜,點綴出空間的品味與優雅,打造質感生活里心底的躍動。


空間與空間既有界限又相互溝通,材料表現,顏色層次,觸感差異構建了空間的品質感。


木柵欄讓空間層次變得豐富,與簡約的電視柜交織出黑白的藝術范兒和高級感。讓光照耀進來,讓氣氛不受阻礙,讓美好有枝可依。
效果圖

實景


餐廳
良好的空間呼應感,傳遞著空間和顏色的藝術關系,一切都是剛剛好。
效果圖

實景

黑與白,繁與簡,寥寥幾筆勾勒出簡約高級的藝術空間。


沒有多余的形式,沒有多余的裝飾,在適度原則中賦予家更多的故事氛圍。
既不一味地鋪滿,也不強調刻意的留白,而是在線條與色彩之中,尋覓到和諧適度的美感,在慵懶與華麗之中,找尋完美的平衡點。


臥室
簡潔的空間,陽光更肆意的灑進來,白色的窗簾似乎把一切都輕柔化了,沉淀品質,歲月靜好。
效果圖

實景




明艷的顏色熱情洋溢,個性鮮明、摩登時尚,綻放內心炙熱的靈魂,追尋不妥協的生活態度。

生活亦如同這熱情的花束般,充滿了明媚與希望。






