【金芒果案例】銀海泊岸 145㎡ 現代極簡
過度奢華總會讓人產生距離感,而精致、簡約的設計往往更適合生活。今天,小編給大家介紹一套金芒果首席設計師張正川的作品:銀海泊岸——現代極簡

擅長風格:現代輕奢、現代極簡、中式、簡歐、美式
成功案例:中航云璽大宅、滇池ONE、銀海泊岸、潤城五區、海倫國際、九夏云水、滇池星城、滇池俊府等
案例介紹

首席設計師:張正川
項目地址:銀海泊岸
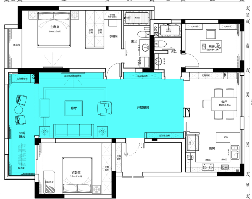
戶型面積:145㎡
設計風格:現代極簡
這是一套145㎡的現代簡約風格裝修案例,在設計的元素,色彩,照明力圖簡化到超少。但高品質的理念已經延伸到了每個領域的設計中。
戶型圖

客廳


開闊的客廳選用簡約的灰白色為主調帶給主人最純粹的視覺品味,不同純度的灰白色在墻壁地板、沙發、軟裝處使用呈現空間的一體感同時減少裝飾為整個空間去繁就簡,大面積的地毯帶來溫潤感融合了灰白度空間的冷清。
餐廳


餐廳,灰、白、橙三色的組合運用冷暖搭配保持與客廳空間風格一致的同時也有了煙火氣
主臥室

原木色的臥室更加溫馨營造暖融融的臥室氛圍床頭采用不同材質豐富墻面空間空間質感得以提升
次臥室

大面積的帶來溫潤感,背景墻采用淺藍色(乳膠漆調色)帶來小年輕的氣息感,落地窗,保證了采光,并且還能讓整個空間看起來更加的有檔次。


