江湖海167m2現代風格丨徜徉藍天碧海,縱享開闊心境
似一杯清酒純香清冽,像一首慢歌安寧沉靜。有著皇家貴族的高貴優雅,
彰顯低調奢華的神秘魅力。經典藍,演繹高品質家居里的時尚風采。

本案設計師以“藍”為主色調,
將其完美的融入穿插進家居設計當中,
充滿生機與活力的藍色,
讓家擁有碧海藍天的開闊之感,
更是在沉靜怡然的氣氛之余,
在藍色當中汲取到了
對生活的絲絲希望與期盼。
案例分享
項目樓盤:江湖海
項目面積:167m²
項目風格:現代風格
設計師:李波
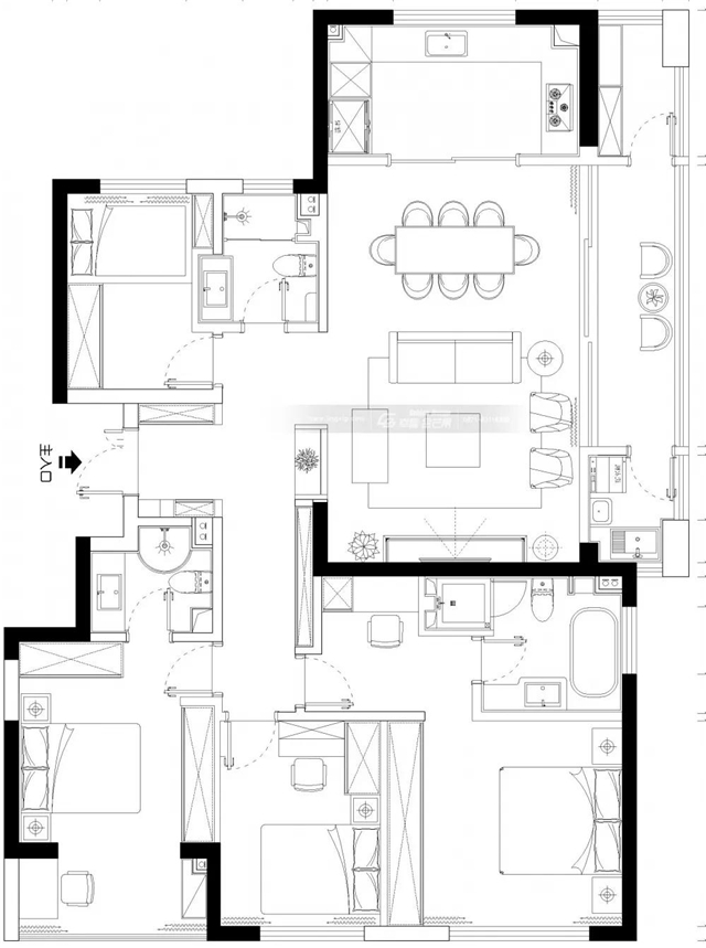
平面布置

改造前

改造后
入戶玄關
俗念消除凈,
怡然自得也。
松際露微月,茅亭宿花影。清風疏影,入戶既展現空間的清逸和非凡氣度,不免有讓人想要更進一步一探究竟的意愿。長虹玻璃打造隔而不斷的效果,若隱若現間,空間格調感倍增。

入戶玄關
一虛一實,空間變得多變。

入戶玄關
客廳
清透的氣質讓人身心舒逸,高級的冰藍攜裹著金屬家具帶來的高貴,那一股清冷的專屬氣質,讓家擁有難以模仿的魅力格調。
輕薄的白色紗簾,配合藍色,送來大海般的清新與悠然。神秘的藍色,醞釀專屬的高級感。

客廳
木材細膩溫潤的觸感,讓家居質感更上一層。大理石邂逅空間高級感,經典的藍色,簡約的造型,在歷經時光的沉淀下仍然經久耐看,不會過時。

客廳

客廳
主次分明,剛柔并濟,目之所及皆安心,手之所觸皆溫柔。

客廳
寬大的落地窗將清風和陽光很好的納入屋內,有序而適意的空間節奏,營造舒適的家居生活。

客廳
餐廳
經典的黑白搭配,既展現高級的格調,又不失清新之感。采用細線條餐椅,展現精致感的同時,醞釀細膩溫柔的家居體驗。

餐廳

餐廳
純白的色調,開闊的心境,加上裝飾畫的加持,仿佛漫步在海邊。藍天白云下,海浪拍打著沙灘和礁石,吸一口都是清冽的味道。

餐廳

餐廳
臥室
統一的淺色調不會過于雜亂,讓身心變得沉靜,隨之產生的是適合舒睡的親切感。木色帶來純粹的空間感受,展現返璞歸真的家居氣質。

臥室

臥室
大理石花紋營造空間寫意氣質,黑白色系融入暖色系,精致的布局裝飾讓家居格調變得不簡單。
主臥衛生間

主臥衛生間
次臥
每一件氣質不凡的單品,醞釀起高級家居品質。簡單的背景中融入裝飾畫,一繁一簡間層次感彰顯,黑白條紋展現的是文藝感。
精致的燈飾泛起高級感光澤,光影變幻間空間立馬變得高級。

次臥
兒童房
可愛的小熊在講述一個森林里的童話,夢幻的燈飾裝下一個又一個甜美的夢境,甜美不失恬靜的格調,集入睡和閱讀習作功能一體,讓孩子在自己的世界里快樂而放松。

兒童房
在質美的家居里感受舒適,在格調的空間里體會生活。今天的分享就到這里啦,這樣的現代風格你們喜歡嗎?歡迎在評論區留言哦~


