北歐風合集丨千變萬化北歐風,總有一套戳中你
關于家的設想
可以是早上睜開眼
帶著塵露味道的光線;
可以是早餐機里彈出的
帶著香氣的面包;
可以是出門時
擺在門邊柔軟的拖鞋;
可以是下班后可口飯菜
和舒適的熱水澡。

——生活本就忙忙碌碌,小窩當然要舒舒服服,
現當代人,骨子里總有那么幾分浪漫、情懷在作怪,對家的期待也是獨一無二的。北歐風格裝修簡約舒適,回歸自然,人性化的特點,在貌似不經意的搭配下一切又渾然天成。
今天芒果給大家分享的是北歐風的幾套不同感覺的案例,一起來看看哪套戳中了你吧。
1、溫馨煙火氣
建筑小區:山海灣
建筑面積:53m²
設計師:巖莊扁
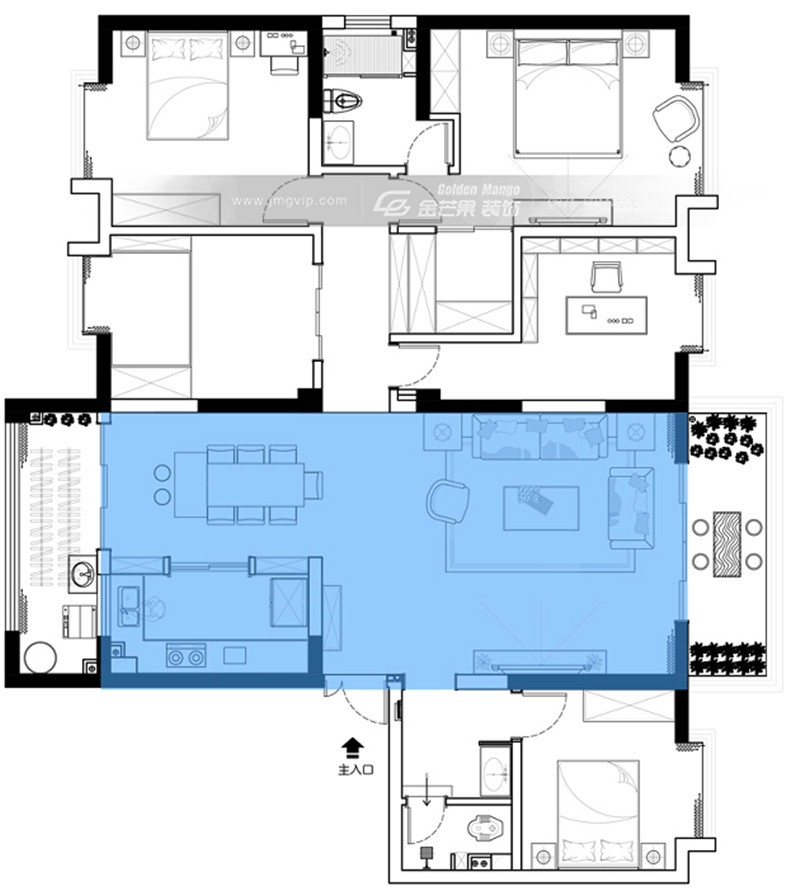
戶型圖

小戶型房屋得到合理的空間規劃也可以裝出令人驚艷的效果。麻雀雖小,五臟俱全,除了必要的生活空間,還有留有兩個陽臺,舒適度和功能性兼具,這樣的家不要太舒服。
客廳

入戶門廳設置兩個原木儲物柜,提供小戶型需要的大量收納空間。

淺色系布藝沙發和整體原木色家具搭配,營造溫馨慵懶的氛圍,窩在沙發上看一部自己的喜歡的書或電影,幸福感爆棚。


電視背景墻既是隔斷又是操作臺,合理空間利用帶來更多活動區域,豐富空間層次。
臥室

床頭置物架既實用又美觀,飄窗讓房間多了一塊休閑區域,營造舒適的休息空間。
浴室

2、邂逅北歐森林
建筑小區:風華俊園
建筑面積:197m²
設計師:李福文
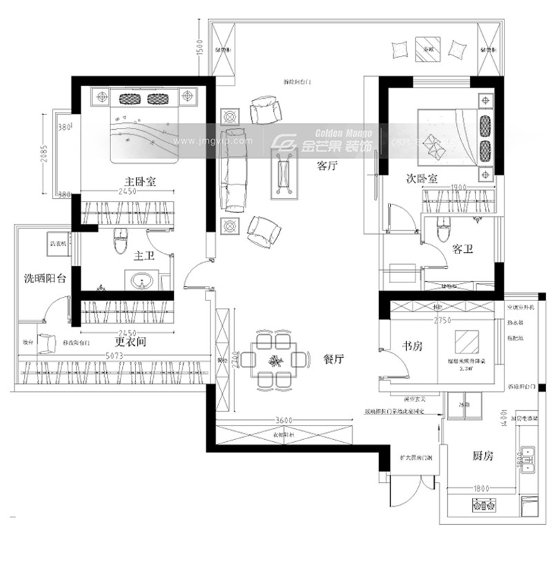
戶型圖

綠色遇上原木,精致藝術又個性十足,就像是闖入了一片清新的綠林,邂逅神秘的北歐精靈,生活也可以文藝一點。
客廳


綠色的墻體給人帶來強烈的視覺沖擊,點綴顏色稍亮的抱枕、座椅,優雅但不沉寂,清高但不傲世。點綴清新綠植,一花一世界,隱有暗香浮來,便如置身四季。
廚房


窗外是繁華盛景,窗內是人間煙火,就著美景吃飯,何嘗不是一件美事。順手在餐邊柜取下一件自己喜歡的餐具,好像這如麻的人生也容易被捋順了。
臥室

和客廳顏色相呼應,讓整體空間更加協調。墻上的裝飾畫增加藝術氣息,簡單卻有韻味。生活的精致感,往往就是在這樣的細節當中得以體現。
3、遇見清新甜美
建筑小區:海倫堡
建筑面積:150m²
設計師:羅珩
戶型圖

清新淡雅,如清風拂過,留下空氣中似有若無的清甜的香氣,絲絲微涼如飲甘冽清泉,這是獨屬于你的芬芳。
客廳


淺粉色、淺綠色,清新淡雅的配色總是容易讓人放松、身心舒展,仿佛人也跟著環境,變得溫柔起來。生活本就那么多繁雜急躁,在家里,何不讓自己淡一點、慢一點。

簡約的配色,卻讓空間有一種別樣的淡雅,寧靜之美。
餐廳

大量原木家具的運用,讓用餐空間寧靜且放松,簡潔的燈飾和柜體符合整體空間簡約、寧靜的美感,輔助光源投下溫柔的光線,細細品味生活的幸福滋味。
臥室

溫柔的粉色總是能輕易俘獲少女心,甜而不膩,柔而不俗,讓平淡的生活里也增加一些可愛的顏色。
玄關


暗藏玄機,移步換景,讓這些可愛的小東西把生活裝點得更可愛一點。生活的幸福感,往往就藏在這些細碎的細節里,抬頭就可以感受到的生活的儀式感。


