北歐風格家裝丨吾悅廣場—把對你的溫柔細細的藏進生活里

早晨起來,
入眼是溫潤的灰白、浪漫的淺粉,
吸一口清冽的獨屬于早晨的氣味,
伸個懶腰,跶著拖鞋踱到客廳,
陽光灑在沙發,
埋伏下一天喧囂與美好。
如果生活太忙,
那么我想把對你的溫柔,
細細的藏進生活里。
今天分享的北歐風家裝案例,設計師從簡約實用性出發,拋卻繁瑣的裝飾,為屋主打造舒適愜意的家居生活。
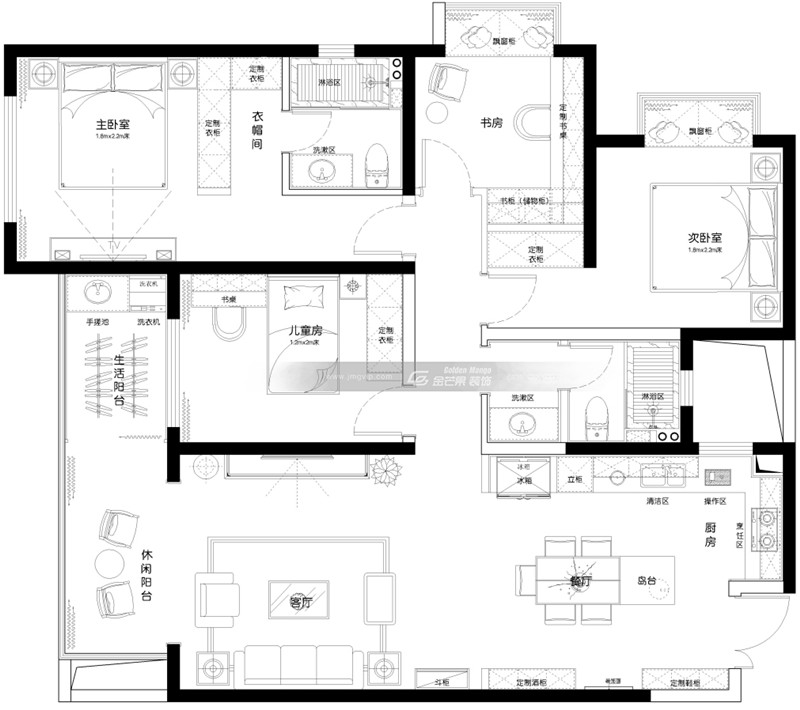
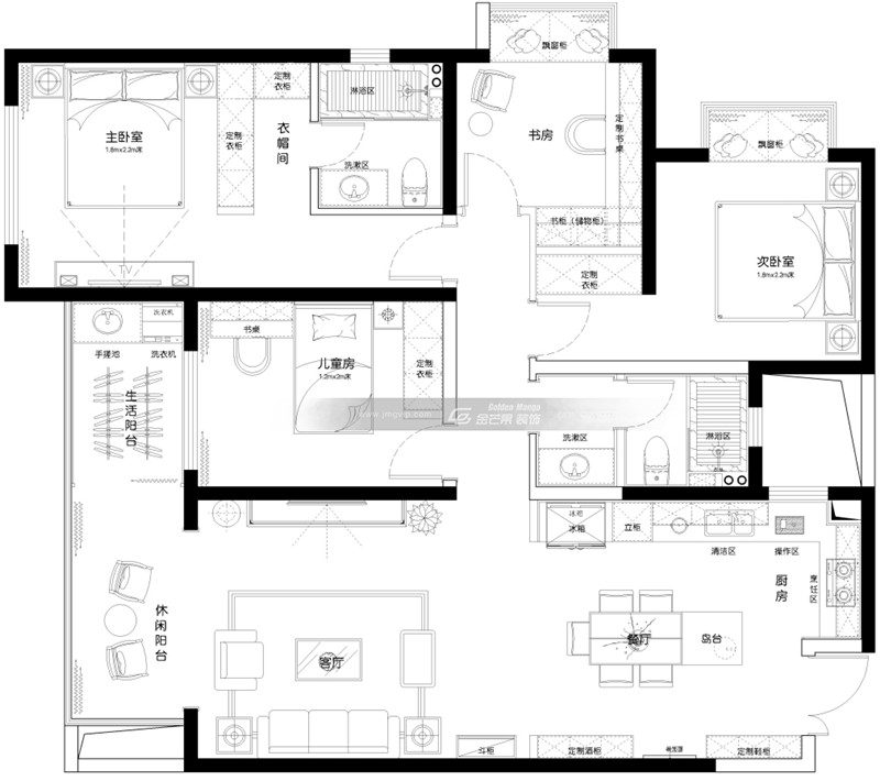
▲裝修樓盤:吾悅廣場
裝修設計:金芒果裝飾
設計風格:北歐風格
住宅面積:140m²
▲ 設計師:張正川

改造前

改造后

效果賞析
客廳

沉靜的淺灰色空間,營造容易讓人感到輕松、慵懶的氛圍。點綴暗粉色的家具、配飾,不過于鮮亮的顏色既符合整體沉靜的氛圍,又很好的點亮空間。


干凈的配色加上綠植的加持,靜中有動,動中顯靜。空靈、溫柔的氛圍就像闖入了一片北歐森林,讓人可以自在的放空,空氣中都是清新的味道。
電視背景墻刪繁就簡,卻彰顯簡約的高級,一灰一白,一亮一暗,光與影的交錯,藝術感韻味盡顯。

沙發背景墻顏色和電視背景墻呼應,讓空間更有個性,更具有層次感。大面積的色調通過簡單的線條來劃分,寥寥數筆就打造出藝術的高級感。
地毯跳躍的花紋讓空間更加活潑且更有質感。

餐廚

原始戶型的廚房過小,設置開放性廚房,餐廚一體,“放大”空間,增加房間煙火氣。
淺粉和淺綠的餐桌椅,活潑、靚麗,讓整體空間不會顯得過于寡淡。

廚房既是美食的締造空間,也是家庭互動的娛樂空間,開放式的大空間可以輕松滿足年輕家庭聚餐、親子互動等需求。簡餐、西式菜品都可以在島臺上實現。和客廳的連通性讓整體互動性更強。
大量的吊柜和立柜,儲物空間大,收起生活的細碎,提升家居品質。
臥室

藍色安逸又充滿魅力,燈飾的搭配就像藍色的星空閃爍的繁星點點,又像平靜的湖面上忽然泛起的波光。白色的紗簾純凈溫柔,給予心靈和肌膚親切的撫慰。


